发布时间:2025-09-08浏览量:1279
在现代住宅设计的语境中,如何让空间既承载高效的生活节奏,又容纳细腻的情感交流?如何将轻奢的精致感与家的烟火气融合共生?这套大平层设计给出了一次优雅的解答 —— 以 开放式布局为脉络,材质与光影为语汇,艺术与细节为韵脚,谱写出现代轻奢风的居住新篇。
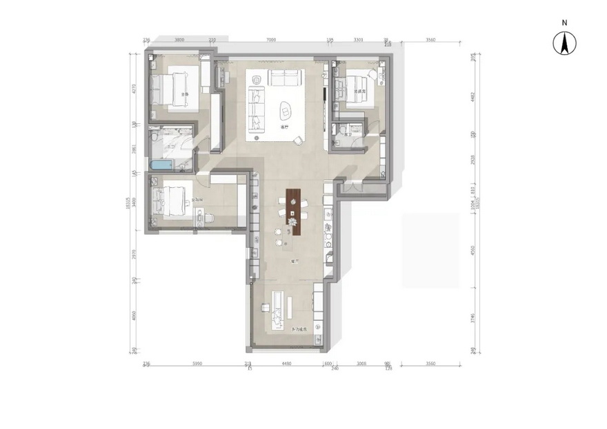
户型基底:方正格局里的生活哲学
从户型图审视,空间遵循 “方正对称、动静分区” 的逻辑:

公共区聚合
:客餐厨一体化贯穿核心,形成家庭互动的 “超级场域”,烹饪、用餐、休闲无缝衔接;
私密区退守
:卧室区分布两侧,主卧带独立卫浴,次卧与书房(或多功能室)有序排布,保障隐私;
采光优势
:客厅朝南,大面宽接纳充足日照,南北通透的格局让风与光自由穿梭,为空间注入自然活力。
走廊:艺术感的渐进式铺陈
从玄关进入,走廊成为 “艺术展示的延伸线”,每一步都似在逛一场小型展览:

▶ 视觉焦点:冲突与和谐的平衡
红色雕塑与黑白大理石纹理墙面形成强烈对比,抽象挂画延伸空间纵深感。艺术装置的 “跳跃感”,打破了走廊的单调,让过渡空间也充满故事性。
客餐厨:打破边界的社交主场
客餐厨区域以 “无界设计” 重构生活场景,将 “烹饪 - 社交 - 休憩” 拧成一条连续的体验链:
▶ 岛台 + 餐桌:功能与氛围的双重载体
木色餐桌与岛台一体化衔接,既拓展了烹饪备菜的操作面,更成为家庭情感交流的 “中心舞台”—— 清晨的咖啡、深夜的加餐、周末的烘焙派对,都能在此发生。黄色餐椅如点睛之笔,在木色与灰色的主调中跳出活力,搭配果盘、绿植,让烟火气与设计感共生。

▶ 橱柜系统:藏与露的秩序美学
灰色橱柜采用嵌入式设计,电器与收纳隐于立面,保持视觉整洁;岩板墙面搭配台下盆,兼顾美观与实用,细节处的灯带设计,让烹饪区在夜晚也能散发柔和光晕。


▶ 空间互动:从 “孤立空间” 到 “家庭共同体”
开放式布局打破了厨房、餐厅、客厅的物理边界,让家人在备餐时仍能交流,用餐时可眺望客厅风景,真正实现 “做饭不孤单,用餐不枯燥” 的生活升级。

客厅:光影与质感的叙事诗
客厅以 “弧形吊顶 + 层次灯光” 柔化空间,用材质混搭构建轻奢质感:
▶ 家具:舒适与设计的平衡
浅灰色皮质沙发搭配木色扶手,棕色抱枕增添温暖;圆形茶几、黄色单人椅打破规整,营造松弛感。家具的 “模块化组合”,让空间可根据需求灵活调整(如接待访客时拉开距离,亲子时光时围合互动)。



▶ 壁炉:空间的温度锚点
电视墙下方的壁炉设计,不仅是视觉焦点,更在冬日成为家庭的 “温暖引擎”—— 火光摇曳间,轻奢风的精致与家的烟火气达成和解。

▶ 光影:藏在吊顶里的氛围魔法
弧形吊顶内嵌线性灯,与筒灯、落地灯形成 “主灯 - 辅灯 - 氛围灯” 的层次,白天借自然光提亮,夜晚用灯光勾勒轮廓,让空间在不同时段呈现不同气质。


卧室:静谧中的精致营造
主卧设计以 “减法美学” 为主,却在细节里藏着对舒适的极致追求:
▶ 色彩与材质:冷静与温暖的对话
深灰色背景墙奠定静谧基调,浅棕色皮质床头传递柔软触感,木色床头柜温润质朴。床头的竖条装饰画与线性灯,在简洁中勾勒精致感,避免过度装饰的冗杂。

▶ 灯光:为睡眠定制的温柔
黑色吊灯垂坠而下,光线柔和不刺眼;地脚灯的间接照明,既满足起夜需求,又不破坏睡眠氛围。灯光的 “明暗切换”,让卧室既是 “安眠舱”,也是 “睡前阅读角”。

材质与色彩:平衡温暖与高级的密码
设计中,木色(温暖)、灰色(冷静)、黄色(跳脱) 形成三色韵律,材质混搭则让触觉与视觉交织出层次:

木色
:贯穿餐桌、沙发扶手、床头柜,赋予空间 “烟火气”,中和轻奢风的冷硬;
灰色
:覆盖橱柜、背景墙,奠定 “高级感” 基调,让空间更显沉稳;
黄色
:以餐椅、单人椅点缀,激活空间活力,成为视觉的 “呼吸口”;
材质混搭
:大理石的冷冽、皮革的柔软、岩板的硬朗,在碰撞中达成平衡,让家既有 “精致感”,又不失 “触摸得到的温度”。
设计的精髓,在于 “在克制中释放张力”:通过开放式布局重构生活场景,用材质与色彩编织温度,以灯光和艺术赋予灵魂。它不再是 “为设计而设计” 的浮夸,而是真正贴合现代生活的居住提案 —— 让空间服务于交流,让设计回归于生活,让家成为 “身心归处” 与 “审美容器” 的统一体。