发布时间:2026-04-24浏览量:46
康耐登以“做美好生活提案者”为核心定位,深耕改善型户型全案设计领域,秉持“以简致奢、以安为家”设计理念,聚焦业主核心居住诉求,打造兼具品质感与适配性的高端栖居设计方案。本次深圳南山星海名城280平改善型住房项目,我们以专业设计为核心,延伸提供从全案设计、定制化深化,到成品落地的全流程配套服务,项目从专家诊断、家庭成员研究两大前置调研切入,构建全链路专业服务体系,贯穿全案设计、定制深化、施工监控、软装实施至成品落地全过程,以标准化服务、定制化设计与精细化管控,实现空间功能与居住体验的双重升级,彰显康耐登高端设计收费案例的专业水准与服务价值

康耐登专项设计团队,按全案专业标准对房屋开展全维度诊断,结合结构力学、动线规划及适老化规范,精准排查核心痛点,评估改造可行性,制定科学可落地的改善方案,筑牢全案设计与落地根基;同步开展精细化家庭成员研究,明确“老人独居、子女探视”的居住模式,通过行为分析、人体工学测算,挖掘老人核心诉求,兼顾家庭欢聚场景适配,为全案定制提供精准专业依据,践行“以业主需求为核心”的服务理念。



本案为深圳南山星海名城280平改善户型,作为康耐登全额收取全案设计费案例,正是源于客户对康耐登全案设计专业性、服务全面性的高度认可,目前已完成从全案设计、定制深化到成品落地的全流程服务,依托“功能藏于美学”设计思路,优化老房痛点,结合户型优势,精准落地定制化设计方案,打造适配老人、兼顾家庭欢聚的品质空间,以实际落地效果回馈客户的信任与认可。


施工阶段:康耐登专业监理团队全程介入,严格遵循品牌工艺标准,把控环保、工艺与进度,材料进场严格检测,定期反馈施工情况,助力业主管控施工品质,实现省心安心落地;软装实施阶段,




作为全案核心,康耐登以“极简至美、知性奢华”为底色,遵循全案设计标准化流程,结合户型需求与适老规范,为业主定制高品质生活方式,严格遵循“功能优先、美学赋能”原则,选用康耐登标志性北美黑胡桃木,搭配天然材质,以简约线条勾勒质感,融入适老细节与收纳规划,实现功能与美学融合,诠释“以简致奢”内核;

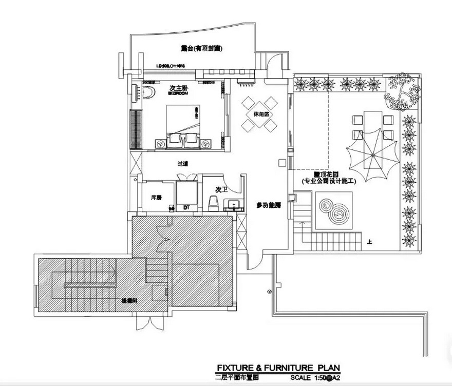
把空中花园打造成可耕可赏的小天地,让老人在花草间寻得晚年乐趣。
设计总纲:木与光的内敛共生
核心材质的北美黑胡桃木,保留木材天然的纹理与醇厚色泽,细腻皮革,让材质本身成为空间最好的装饰;米白、浅灰与原木色铺就基底,空中花园的鲜绿与软装的暖黄零星点缀,既贴合老人温和的视觉习惯,也为空间添了几分生机。

整个空间不割裂功能与美学,顺着康耐登设计思路,让每一件家具、每一处布局都兼顾实用与好看。既能让老人独处时享得静谧,也能在家人团聚时盛满温情,在日复一日的使用中,沉淀出经得起岁月细品的生活气息。
空间叙事:一层一境,藏着时光温度
空中花园:自然与劳作的诗意共生

空中花园是老人日常最爱的活动区,按“能种花、能休憩”的需求规划,借鉴康耐登户外系列的设计巧思,用防腐实木与防滑砾石划分区域。

老人俯身打理花草时无需费力,一边种些家常蔬菜,一边摆上喜爱的花卉,再配上自动灌溉系统,不用费劲儿浇水,也能守住这份园艺之乐。

休憩区摆了一套康耐登经典实木休闲椅与边几,框架经手工细细打磨,胡桃木的天然纹理清晰可见,坐上去既有支撑感又舒服。

午后阳光透过棚架洒在木质家具上,光影斑驳间,老人坐着歇脚、看花,格外惬意。角落做了嵌入式无拉手收纳柜,把园艺工具都藏在里面,既整齐又不破坏花园的自然感。
一层公共区域:通透流动的温情场域
入户玄关定制了一套康耐登同款实木收纳系统,特意设计成“下悬+中部开放+上部封闭”的样式。下方悬空处刚好能放拖鞋和轮椅,老人进门不用弯腰搬挪;

中间开放台装了感应暖光灯,晚上回家找钥匙不用摸黑;浅灰色石材地面和实木柜体搭配得恰到好处,地面完全无高差,老人走路更稳当。

客厅和餐厅打通后空间更通透,顺着“让空间自由流动”的设计理念来规划。客厅放了实木功能沙发,桉木框架搭配米白色透气面料,里面填的是竹炭海绵,既环保又够支撑,软硬度刚好适合老人久坐;搭配的胡桃木茶几做了圆角处理,不用担心磕碰。电视墙没做复杂造型,只用胡桃木饰面板和肌理漆简单拼接,还留了隐形收纳位,看着干净清爽,也合老人喜静的性子。

餐厅搭配康耐登经典款实木餐桌,岩板桌面配胡桃木材质,样子简单却很有质感,一家人围坐吃饭刚刚好。配套的实木餐椅带扶手,座面软包填了大豆海绵,扶手高度经过仔细测算,老人起身时能借上力,暖光落在饭菜上,寻常三餐也有了几分仪式感。
二层私密区域:静谧安全的休憩港湾

主卧围绕“安静、安全”来打造,呼应康耐登寝具系列的设计初心。米白色环保肌理漆墙面配浅灰色实木复合地板,氛围温和不刺眼;

45厘米高的胡桃木软包床,老人上下床不用费劲,床头能调节角度,靠着看书、休息都舒服,里面填的高回弹海绵够支撑,两侧的实木壁灯光线柔和,晚上起夜也不晃眼。


客房兼顾了书房和睡眠功能,放了康耐登实木书桌和扶手椅,书桌线条简洁,腿部空间充足,老人坐着看书不憋屈;扶手椅的软包和主卧风格一致,久坐也舒服。


设计结语:岁月有温度,栖居有本心
不只是改变空间的样子,更像是用康耐登的匠心,为老人的晚年生活量身定制一份安稳。北美黑胡桃木的温润、简约线条的素雅、随处可见的适老细节,都顺着老人的生活习惯来,让园艺之乐、日常便捷与静谧时光,都能在这个空间里自然安放。

康耐登|做美好生活提案者✨ 以简致奢,以安为家,用专业全案设计,将老人的居住诉求,转化为可触摸的品质栖居,不负客户每一份认可与托付~
为什么设计要收费?设计从不是简单的画图,是基于业主需求的精准研判、空间的科学规划、细节的反复打磨,是把“理想居住”转化为“可落地现实”的核心,每一份设计都凝聚着专业与匠心,收费是对设计价值的尊重,更是对业主居住体验的负责。
找康耐登做全案设计,同样的设计费,你能收获的远超预期:
① 全链路专业服务,从前期诊断、调研到落地验收,全程专人跟进,无需业主费心;
② 定制化设计方案,贴合家人生活习惯,兼顾颜值、实用与适老需求,拒绝千篇一律;
③ 品牌资源加持,北美黑胡桃木定制、专属软装搭配,让设计落地更有品质;
④ 精细化管控,施工、软装全程把关,确保设计不脱节、落地不打折,让每一分设计费都花在实处,真正实现“花一份钱,享全流程省心与高品质栖居”。